Hình vẽ mặt cắt nhôm thanh là nền tảng quan trọng cho các bước thiết kế, sản xuất lắp đặt cửa, vách ngăn. Việc thiếu bước thiết kế hay tham khảo mặt cắt, dễ dẫn đến cái sai sót đáng kể trong sản xuất giải pháp nhôm kính. Bản vẽ mặt cắt nhôm xingfa 93 cung cấp các chi tiết cần thiết cho các sản phẩm cửa lùa nhôm kính. Bài viết giúp bạn tìm hiểu khái quát về mặt cắt nhôm xingfa 93.
Ngoài ra, Bạn có thể tìm hiểu thêm nội dung về mặt cắt nhôm xingfa khác từ nhà máy An Lập Phát
- Mặt cắt nhôm Xingfa hệ 55 dành cho bạn tham khảo
- Tìm hiểu về chi tiết và cấu tạo của mặt cắt nhôm xingfa hệ 1000
1. Giới thiệu về mặt cắt nhôm xingfa hệ 93
Nhôm Xingfa 93 là hệ nhôm được ưa chuộng dành cho cửa nhôm mở lùa phổ biến nhất là loại 2 cánh, 3 cánh, 4 cánh. Là giải pháp giải phóng không gian, tối ưu diện tích, mở rộng tầm nhìn, phù hợp với kiến trúc đô thị hóa, diện tích xây dựng có nhiều hạn chế. Ưu điểm có kết cấu nhôm dày cứng chắc, bề mặt sơn phủ cao cấp, giúp độ bền cửa nhôm xingfa 93 vượt trội.
Mặt cắt nhôm xingfa 93 thể hiện thông tin về kích thước, hình dáng, vị trí thiết kế của thanh nhôm, tên gọi, hoặc là thanh nhôm đó được thiết kế cho một sản phẩm lắp đặt riêng biệt nào. Giúp cho các kỹ sư, người lắp đặt, thợ thầu có đầy đủ thông tin cần thiết để lựa chọn giải pháp nhôm thanh phù hợp với nhu cầu mà họ đang muốn lắp đặt.Đồng thời mặt cắt là tượng trưng cho tiếng nói chung giữa người bán hàng và bộ phận kỹ thuật khi tư vấn, tìm kiếm giải pháp.
2. Ứng dụng của mặt cắt nhôm xingfa hệ 93
Nhôm xingfa hệ 93 được sử dụng phổ biến trong các bộ cửa lùa. Với ưu điểm dày chắc, màu sắc đa dạng, thiết kế hiện đại tinh tế. Được ưa chuộng lắp đặt trong các thiết kế nhà ở thành thi, văn phòng, biệt thự.
Trong sản xuất, lắp đặt cửa lùa 93, mặt cắt nhôm xingfa hệ 93 có vai trò thiết yếu đối với người thợ, kỹ sư thiết kế. Chúng giúp trình bày rõ ràng thông tin chi tiết của một bộ cửa, bao gồm độ dày, vị trí lắp đặt. Hỗ trợ quá trình sản xuất cửa nhanh chóng, chính xác.
Chi tiết ứng dụng mặt cắt nhôm xingfa 93 trong ngành nhôm kính phải kể đến
- Thiết kế khuôn nhôm định hình phù hợp với yêu cầu dự án
- Giúp mô tả hình dáng thanh nhôm
- Cung cấp thông tin về độ dày, trọng lượng, vị trí lắp đặt
- Hỗ trợ kỹ sư, thợ nhôm kính thiết kế và lắp đặt bộ cửa lùa hoàn chỉnh, chi tiết
- Cung cấp thông tin chi tiết cho kỹ sư, kiến trúc sư, thợ lắp đặt.
- Thống nhất thông tin giữa nhà cung cấp nhôm thanh và các kỹ sư, kiến trúc sư, thợ nhôm kính.
Sau khi có được thông tin mặt cắt, công đoạn lên thiết kế bộ cửa sẽ nhanh chóng hơn nhờ vào
- Xác định đúng vị trí lắp đặt thanh nhôm
- Đồng bộ số đo kích thước khung bao, khung cánh
- Ghép nối, sản xuất trở nên thuận tiện và nhanh chóng.
- Thiết kế được nhiều dạng mã đa dạng và phong phú hơn.
- Bảng vẽ sơ đồ lắp đặt giúp khách hàng có cái nhìn tổng quan về thiết kế bộ cửa, hiểu được cách đóng mở vận hành.
3. Chi tiết bản vẽ mặt cắt nhôm xingfa hệ 93
Nhôm xingfa Đại Tân hệ 93 đa dạng ứng dụng cửa lùa như cửa lùa 2 cánh, 3 cánh, 4 cánh… linh hoạt kết hợp ô cố định, vách ngăn tăng tính thẩm mỹ cho kiến trúc. Cùng tìm hiểu chi tiết mặt cắt nhôm xingfa hệ 93 và sơ đồ lắp 2D của các loại cửa lùa.
Thanh profile có cấu trúc dạng hộp, bên trong trống, có đường gân sole nhau gia cường tạo khả năng chống chịu lực va đập cao, không bị biến dạng.

Bảng mặt cắt ô cố định nhôm Xingfa hệ 93 – 3 rây, giúp tối đa số cánh mở từ 3 đến 6 cánh, có khả năng xếp gọn cánh về 1 bên vô cùng độc đáo.

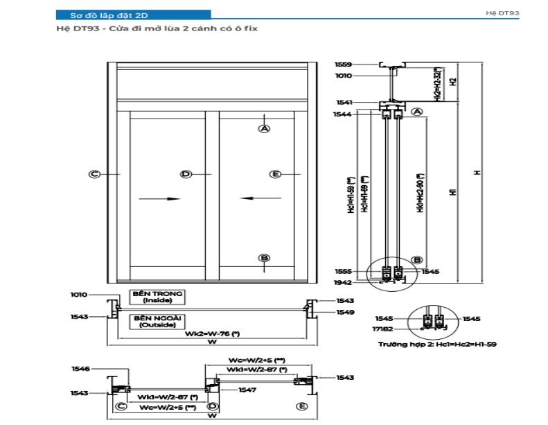
Bản vẽ mặt cắt chi tiết cửa đi nhôm Xingfa mở lùa hệ 93, kết cấu chắc chắn, thiết kế hiện đại đẹp mắt.

Bản vẽ chi tiết mặt cắt cửa sổ lùa nhôm xingfa, có khả năng tinh chỉnh kích thước khung bao khung cánh theo yêu cầu thiết kế.

Sơ đồ lắp đặt cửa sổ mở lùa Xingfa hệ 93, giúp tối đa tầm nhìn, thoáng khí, thiết kế sang trọng, tinh tế.

Mặt cắt kỹ thuật cửa sổ lùa nhôm Xingfa hệ 93 2 cánh, được lắp đặt phổ biến ban công cho nhà phố, cửa thông văn phòng.

Mặt cắt kỹ thuật cửa sổ lùa nhôm Xingfa hệ 93 4 cánh, phù hợp lắp đặt cho không gian có diện tích rộng như biệt thự, nhà xưởng…

4. Tổng kết
Mặt cắt nhôm xingfa 93 là hình vẽ 2D mô phỏng hình dạng thanh profile nhôm xingfa hệ 93, bao hàm các thông tin liên quan đến độ dày, kích thước, vị trí lắp đặt thanh nhôm trông bộ cửa. Trong sản xuất cửa nhôm, đặc biệt cửa mở lùa sử dụng nhôm hệ 93, bảng vẽ mặt cắt profile và sơ đồ lắp đặt mặt cắt là vô cùng cần thiết. Bên cạnh việc hỗ trợ thông tin cho kỹ sư thiết kế, bảng vẽ còn giúp quá trình sản xuất lắp đặt bộ cửa của người thợ nhôm kính được nhanh chóng và chính xác. Bảng vẽ còn là một phương thức ngôn ngữ chung giữa đại lý cung cấp nhôm thanh, kỹ sư, kiến trúc sư thiết kế công trình, khách hàng là chủ nhà, chủ đầu tư dự án, giúp hình dung rõ sản phẩm cửa làm ra.
An Lập Phát đầu tư nghiên cứu, phát triển mặt cắt nhôm xingfa 93 cho đa dạng giải pháp, chuyên biệt cho từng nhu cầu khách hàng. Đưa ra tư vấn chuyên môn cần kíp để mang đến cho khách hàng những giải pháp nhôm kính hoàn thiện nhất, cũng như hỗ trợ tận tình cho phía các nhà đầu tư nghiên cứu phát triển, thiết kế mặt cắt nhôm chuyên dùng và các nhu cầu riêng biệt. Công ty sản xuất nhôm An Lập Phát được biết đến là đơn vị cung cấp giải pháp nhôm định hình cao cấp cho các công trình kiến trúc như nhà ở, văn phòng, căn hộ, biệt thự,…

Không chỉ chú trọng vào chất lượng của từng sản phẩm, chúng tôi cũng quan tâm đến trải nghiệm của khách hàng. Mỗi nhân viên tại An Lập Phát đều được đào tạo chuyên nghiệp, quy trình sản xuất và phân phối uy tín đảm bảo sản phẩm đến tay khách hàng đều là hàng chính hãng chất lượng cao. Không dừng lại ở đó, An Lập Phát luôn tiên phong tìm kiếm, đổi mới, nghiên cứu các ứng dụng nhôm định hình cho cuộc sống an cư lập nghiệp và phát triển của khách hàng. Nếu quý khách hàng có nhu cầu tham khảo các sản phẩm khác tại An Lập Phát, hãy truy cập vào trang sản phẩm ngay trên website. Và đừng ngần ngại để lại thông tin để chúng tôi có cơ hội hỗ trợ bạn ngay nhé. Liên hệ tư vấn qua hotline 1800 6332.
Tìm hiểu thêm:
- Hướng dẫn các bước cần chuẩn bị khi mở đại lý nhôm
- Quy trình về sản xuất nhôm từ nhà máy An Lập Phát
- Những điều cần biết khi làm cửa nhôm cho công trình
- Kinh nghiệm lựa chọn cửa hàng nhôm chất lượng & Uy tín
Danh sách sản phẩm nhôm từ nhà máy An Lập Phát
- Cửa Nhôm xingfa hệ 1000: Giải pháp thiết kế nội thất phong cách á đông cổ điển / hiện đại
- Nhôm hệ 700: Hệ nhôm ứng dụng rộng rãi theo phòng cách cổ điển
- Đặc điểm kỹ thuật và nhận bảng giá nhôm hệ 55
- Nhôm lá lamri: Dòng nhôm đáng mua nhất